FeaturesBookcases, Built-in Features, Ceiling Fan(s), High Ceilings, Smart Camera(s)/Recording, Walk-In Closet(s), High Speed Internet
AppliancesBuilt-In Electric Oven, Electric Oven, Dishwasher, Refrigerator
HVACArray
Fireplaces2
Exterior Details
StyleRanch
ConstructionBrick
Built In1976
Stories2
ParkingGarage Door Opener, Basement, Concrete
FeaturesSmart Camera(s)/Recording
ServicesSidewalks
SewerPrivate Sewer
Lot DescriptionPrivate, Sloped
Acres1.3
$600,000
1992 Locke Bend Rd
McMinnville,
Tennessee37110
3 beds
3 full baths 3,360sq. ft.
Charming Home with Scenic Views
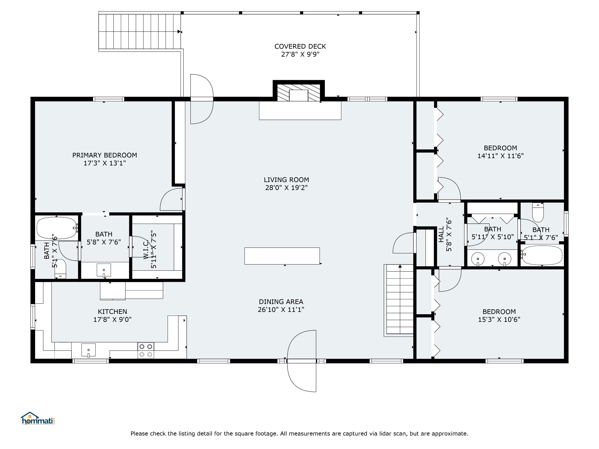
3 Bedroom, 3 Bath Home with River Views
This beautiful 3-bedroom, 3-bath home offers a split floor plan and is perfectly situated on a small hill, set back from the road for privacy. Enjoy peaceful mornings and evenings on the rocking chair front porch or the upper and lower covered back porches, where you can watch deer wander by or take in views of the Collins River during the fall and winter months.
Inside, the home boasts a spacious 31' x 27' great room with vaulted ceilings, exposed beams, built-ins, a magnificent fireplace, and a versatile bar that can be moved to fit your lifestyle (barstools included). The kitchen has been updated with butcher block countertops, black granite steel farm sink and charming cabinet touches that create a warm, country feel.
Additional features include:
* A monitored security system with a new router and DVD (remaining with the property.
* Pool table with slate top and pool accessories as show in the pictures.
* A newly completed site-built storage building with lofts on both sides for extra space
* Several updates throughout, adding both character and convenience
This home comes with a one year Home Warranty through American Home Shield.
This home is just minutes from town and only 1.5 miles from the Collins River access, making it the perfect retreat for both relaxation and adventure.