AppliancesDouble Oven, Electric Oven, Cooktop, Dishwasher, Disposal, Microwave, Refrigerator
HVACArray
Fireplaces2
Exterior Details
StyleTraditional
ConstructionHardboard Siding
Built In2019
Stories2
ParkingGarage Door Opener, Garage Faces Side
ServicesClubhouse, Fitness Center, Playground, Pool, Trail(s)
SewerSTEP System
Lot DescriptionCul-De-Sac
Lot Dimensions125 X 160
Acres0.46
$1,185,000
6830 Chatterton Dr
College Grove,
Tennessee37046
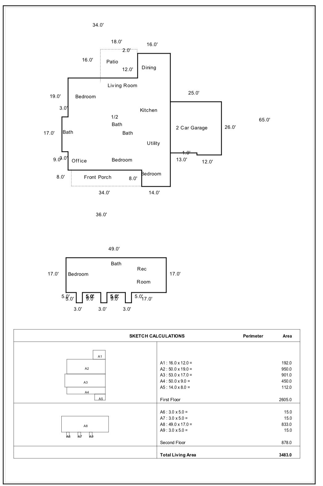
4 beds
3 full, 1 half baths 3,483sq. ft.
Welcome to this stunning 4-bedroom, 3.5-bath home offering 3,493 sq. ft. of thoughtfully designed living space. With timeless curb appeal and modern comforts, this one-owner property is filled with custom details and versatile spaces. Step inside to a welcoming entryway with a home office behind French doors (5th bed?), perfect for working from home. The open living area is anchored by a brick fireplace and sliding doors that lead to a screened-in back porch with its own outdoor fireplace, an ideal spot for year-round entertaining. The kitchen is a chef’s dream, featuring white cabinetry, an oversized center island, stainless steel appliances, and a custom pantry. The primary suite is a private retreat with a luxury en-suite bathroom that includes a split dual vanity, soaking tub, walk-in shower, and spacious walk-in closet. Three (potentially 4) bedrooms are conveniently located downstairs, while upstairs you’ll find a home theatre room for the ultimate movie nights. Outside, enjoy a covered front porch and a huge flat backyard, perfect for a future pool or play space. Up to 1% lender credit on the loan amount when buyer uses Seller's Preferred Lender.