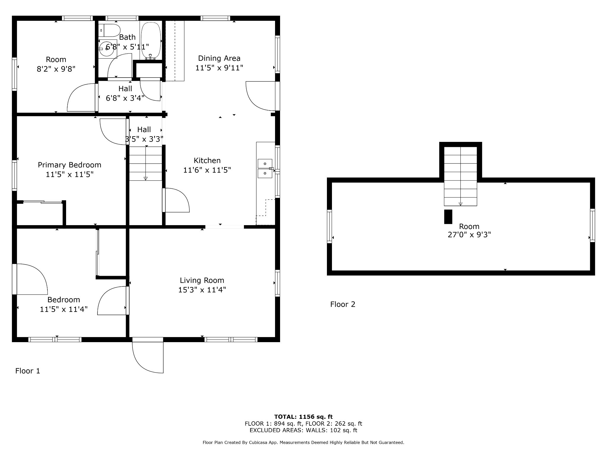
11 acres of level, usable land in Burns with approximately 1,461 feet of road frontage. Possible to subdivide into 1.5 acre lots. CITY SEWER IS COMING - estimated by the end of this year. Ignite Broadband Internet powered by Dickson Electric. City gas. City water & well water (well needs new pump). Gas Generac Generator. 3 income producing Interstate 40 billboards on property; billboard contracts can be terminated if buyer wants them removed. Charming 3 bedroom brick home with metal roof and beautiful shaded yard. Concrete driveway and sidewalk. 24x28 two car detached garage with electric, concrete floor and finished room with windows. 24x12 storage building with windows. Pond. 2 nice garden spots. Sold As-Is. Also listed in residential - MLS 2969669