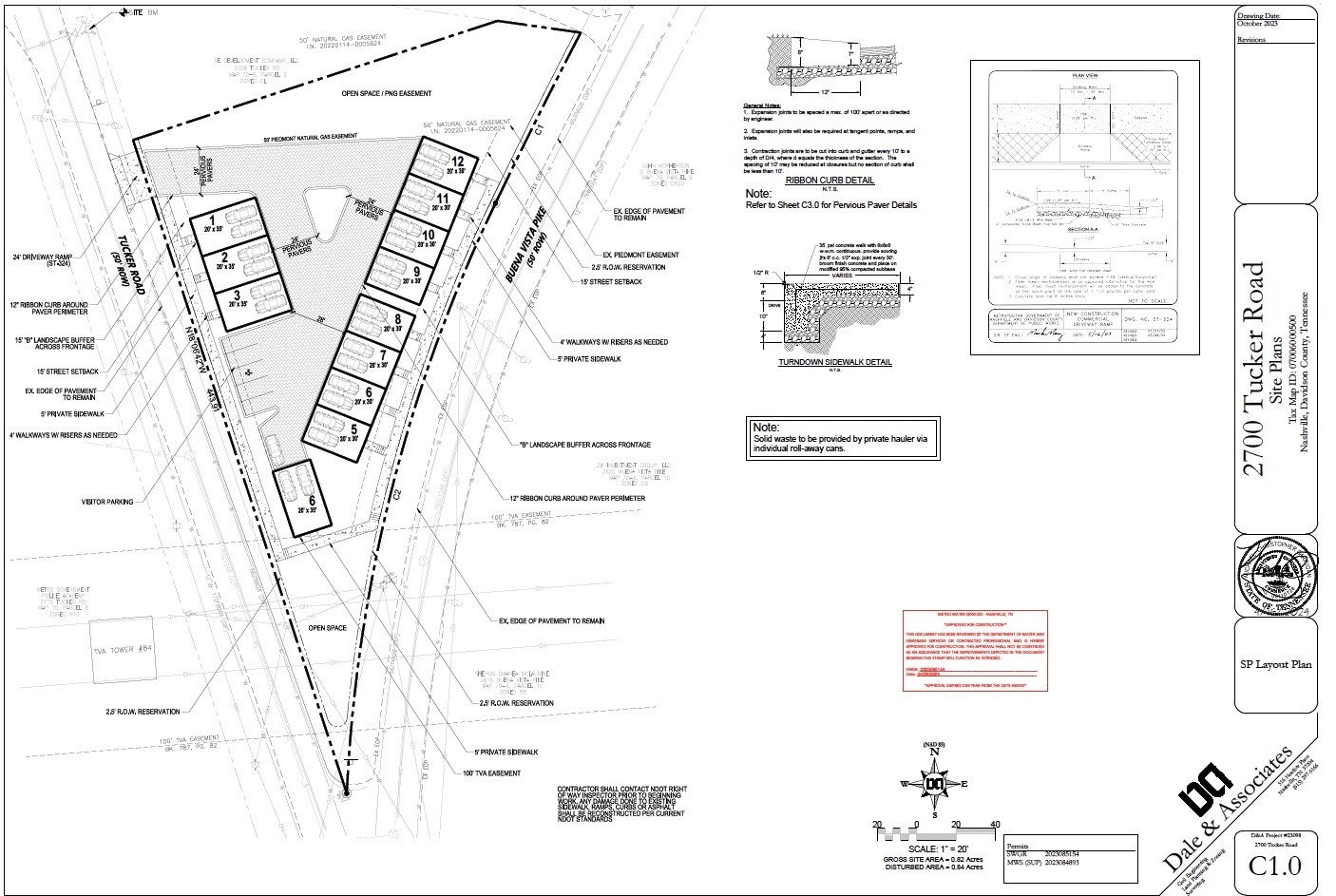
Fantastic corner Development Site for sale. Near Full 1-Acre Commercial-CL zoned off booming W Trinity Ln Main Corridor. Approved and Shovel Ready for a 12-Unit STR Eligible Townhome Development, complete with Full Plans, Renders and Full Architecture included in sale! Existing Bar / Restaurant Building and Residential Rental Home on site. Perfect for Developer looking for next ready to go shovel ready project; Buy and Hold Investor, Section 1031 Exchange; Investor looking for new commercial space or land with tons of flexibility and possibilities. Only 10-minutes from Downtown; the new Oracle Development; minutes from Germantown; East Nashville; West Nashville. All utilities at the street - Water, Gas, Electric - and ready to go. Flat site, minimal grading. Excellent site and location. Tons of options and possibilities. All Diligence and Materials available for review. Reach out to Agent with all questions. BRING ALL OFFERS. Owner / Agent. Taxes to be determined.